| NIVEAU | PIÈCE | SURFACE |
Appartement, 94m², 4 pièces en location à Venerque - 1 090 € par mois *
- Ref 310786542
- Ref 5027/MD/1A
- Type Appartement
- Ville SECTEUR VENERQUE
- Pièces 4
- Chambres 3
- Surface 94 m²
- Terrain 23 m²
- Loyer Charges Comprises :
1 090 € par mois * - * Dont provisions sur charges : 40 € par mois
(régularisation annuelle)
Honoraires charge locataire : 756 € TTC
Dont honoraires état des lieux : 252 € TTC
Dépôt de garantie : 1 050 €
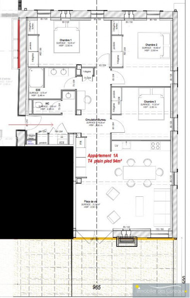
Votre agence Immobilier des Coteaux, vous propose à la location, sur la commune de GREPIAC, cet appartement T4 de plain-pied dans un petit collectif de 6 appartements.
Il se compose d'une entrée avec placard (avec emplacement lave linge), un wc, séjour/cuisine ouverte (équipée plaque et hotte), trois chambres avec placards, une salle d'eau. Terrasse avec pergola, petit jardin (23m2) et deux places de parking privatives. Libre tout de suite !
Accès aux écoles maternelle et primaires à pied. Clim réversible dans le séjour et radiateurs électriques dans les chambres. Tout est neuf (rénovation 2024/2025).
Montant estimé des dépenses annuelles d'énergie pour un usage standard : entre 1090€ et 1530€/an indexé sur les années 2021,2022 et 2023 (abonnement compris). Les informations sur les risques auxquels ce bien est exposé sont disponible sur le site GEORISQUES : www.georisques.gouv.fr
Loyer: 1 090.00 €* Dont provision sur charges : 40 € par mois (régularisation annuelle)
Honoraires charge locataire : 756 € TTC dont :
- Frais de visite / dossier / rédaction du bail 504 € TTC
- Honoraires état des lieux : 252 € TTC
Dépôt de garantie : 1 050 € - -
Notre barème d'honoraires
Diagnostic de
Performance énergétique

Montant estimé des dépenses annuelles d'énergie pour un usage standard: entre 1 090,00€ et 1 530,00€ par an.Prix moyens des énergies indexés sur les années 2021, 2022 et 2023 (abonnement compris)
Contactez
Notre agence
Autour de ce bien :
Découvrez les écoles, hopitaux, commerces ... à proximité
- Bien
- 43.4330838
- 1.442981
- /images/ggmap-marker.png
- click
-
AppartementSECTEUR VENERQUE - 94 m²




















